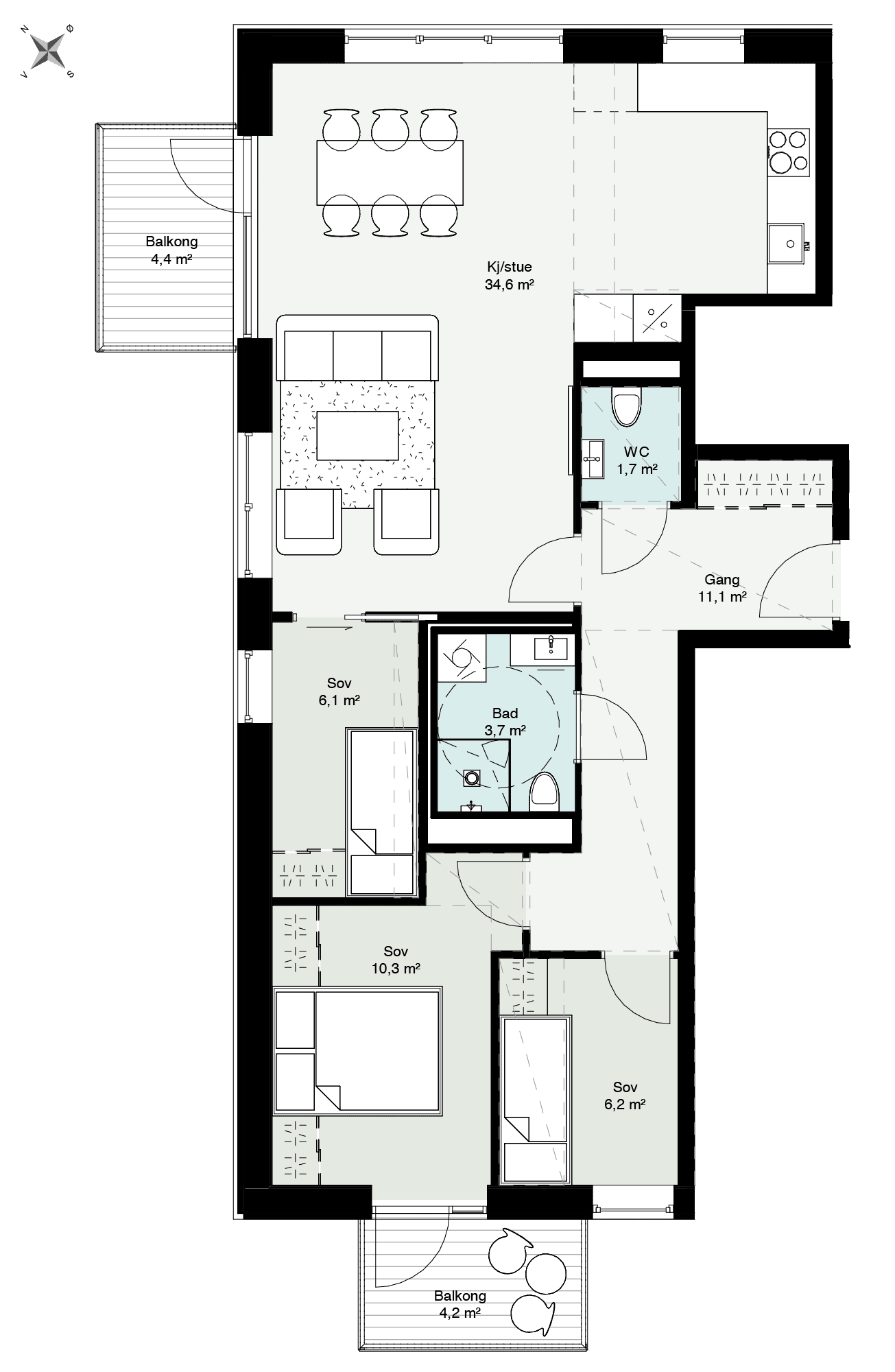
2B-404

Leil. nr

Etasje

Soverom

BRA-i

BRA-e

BRA

Pris

Totalpris

Balkong

Status

Mer enn bare ditt eget hjem

Tilbake til Trinn 1